安徽艾约塔硅油有限公司
网站首页
关于我们
产品中心
全部
氨基硅烷
乙烯基硅烷
烷基硅烷
环氧基硅烷
含氯硅烷
苯基硅烷
酰基硅烷
烷氧基硅烷
酮肟型有机硅交联剂
巯基硅烷
特殊硅烷
特殊硅油
酸型硅烷交联剂
α硅烷
资料下载
新闻资讯
公司新闻
行业动态
联系我们
English
网站首页
关于我们
产品中心
资料下载
新闻资讯
联系我们
您的位置:
网站首页
行业动态
北京胡同里的静谧“桃花源”,周冬雨、古力娜扎都来打过卡
北京胡同里的静谧“桃花源”,周冬雨、古力娜扎都来打过卡
阅读量:3816754
2019-10-26
最近,北京隐世胡同酒店火了
俞飞鸿、林志炫、周冬雨、古力娜扎等明星
都纷纷来这儿拍大片
胡同酒店到底有什么吸引人的魅力?今天小编给你揭晓~
▼
「隐世Hutel·叠院儿胡同酒店」
叠院儿隐藏于北京前门附近的一片传统商业街区之中,占地面积约500平米。原建筑是一座颇具民国特征的四合院商业用房。
沿街△
据说这里在民国时期曾是青楼,建国后又转变为面包坊,翻建之后就空置下来。
沿街俯视△
与民宅相比,这里的房屋较为高大。南侧沿街是一排拱形的门窗,北侧的房屋则建有两层。
庭院关系△
入口△
设计受到传统空间中“多重叠合院落”的启发,将原本的内合院改变为“三进院”,以此适应从公共到私密逐级过渡的功能使用模式,并利用院落的逐层过渡在喧闹的胡同街区之中营造出宁静、自然的诗意场景。
“叠院儿”重新梳理了新与旧、内与外、人工与自然的关系。首先局部拆除了南侧房屋屋顶,在室内空间与街道之间退让出第一层庭院,然后在南北房屋之间新加入一座坡顶建筑,并以两层平行的庭院将新与旧相互分隔。
接待区△
三层庭院让所有的室内空间都能有竹林与阳光相伴。空间之间彼此分离又相互透叠,带有雾化图案的玻璃墙面犹如叠嶂一般,进一步强化了半透明感的空间效果。
前院△
房屋的使用模式跟随着三层庭院,自然产生由开放向私密的过渡关系。南房布置了接待、餐厅、酒吧、厨房、办公、库房等,是一个举办公共聚会活动的地方。
餐厅△
原建筑木质梁柱结构被尽量保留下来,由新置入的两个木盒子服务单元来划分出不同尺度的使用空间。透过第一层庭院,原建筑拱形门窗洞和朱漆大门变成了“影壁墙”,在竹林的映衬下勾勒出真实多彩的胡同生活剪影。
包间△
中间的房屋被处理成一个弹性使用的多功能空间,既可以与前面餐厅合并共同使用,也可以独立作为展厅,或者与后面客房区合并作为休息区。
多功能厅△
休息区△
二进院△
内部空间围绕一个线性的水景庭院展开,主要使用透明、半透明、反射性的材料和家具以弱化一个实体空间的物质存在感,营造有别于旧建筑的轻、透、飘的氛围,既映射又消隐于竹林庭院之中。
水景庭院△
走廊△
北侧房屋是最为私密的客房区域。利用原建筑结构条件,一层空间被划分为四个房间。客房休息区与卫浴区利用材料的变化彼此分开,每间客房都拥有独立的竹林庭院,内外之间相互层叠掩映。
一层客房△
客房庭院△
楼梯△
二层则分为三间大小各异的客房。透过落地玻璃幕墙,视线掠过层叠的灰瓦屋顶和绿树蓝天,正是身居此处的最佳风景。
二层客房△
客房卫生间△
细节△
夜景△
项目位置△
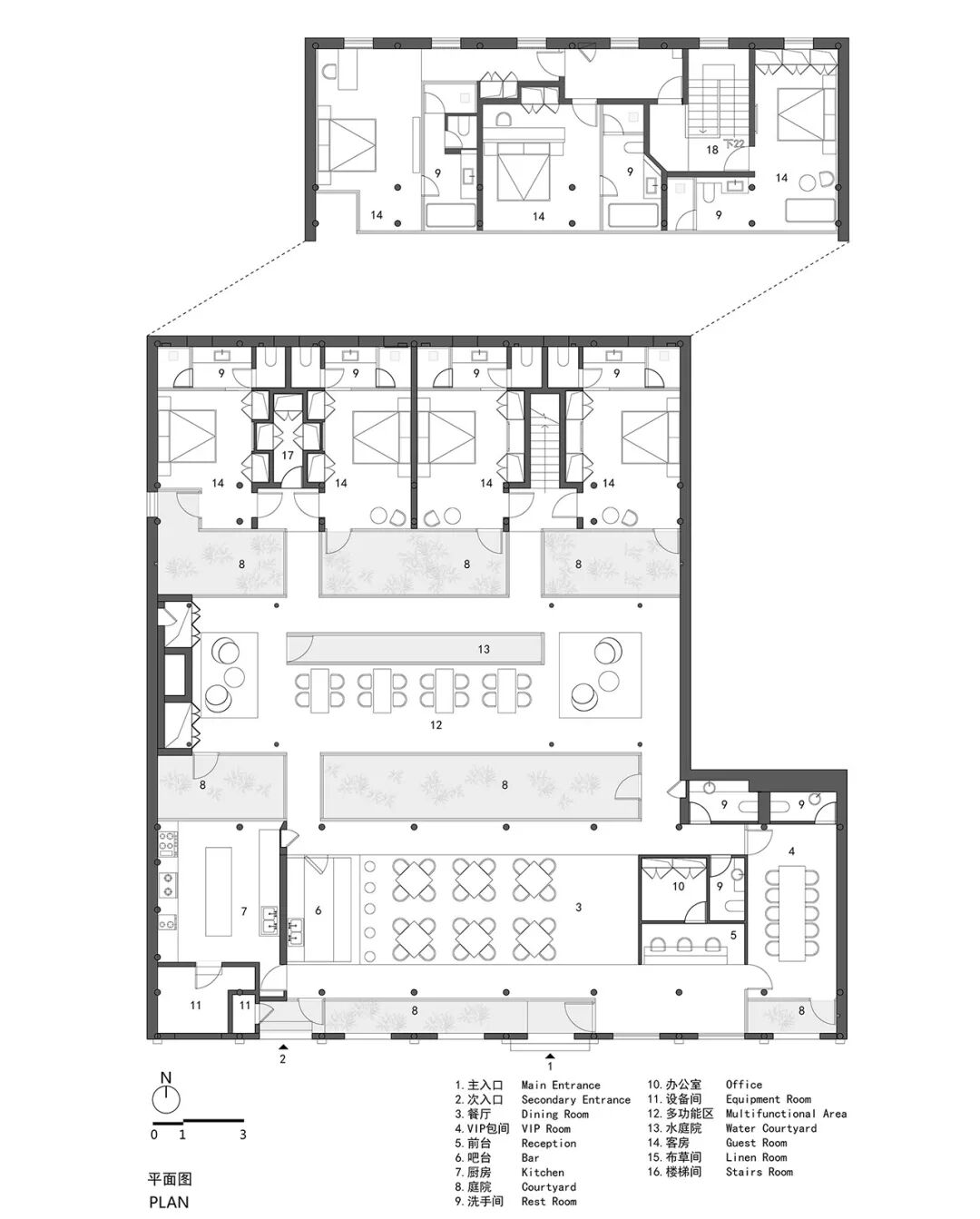
平面图△
剖面图△
外墙详图△
生成图解△
模型图片△
改造前照片△
上一篇:
北京的有名“拆二代”,败光所有钱,最后只得抵押房子打工还债
下一篇:
北京交通大学海滨学院院校代号
为您推荐
推荐 | 拥有一款足以让你自豪的跑车
宝马mini新造型,可爱车模气质甜美,牛仔短裤显身材
「 官方通知 」驾驶证不再是12分,车辆不再“年检”... 禹州车主赶快了解一下!
【实名曝光】非机动车逆行、不按规定车道行驶违法人员NO.77
车主注意:轮胎上出现这个千万别用手摸!
平潭一货车车厢载人被拍照举报 违法车牌同曝光并受处罚!
临清汽车站2019年11月2日开通教师资格证考场直通车啦
价值数亿的跑车齐聚上海 燃炸SCC极速赛道嘉年华
吉林市大爷客车耍酒疯 就不买票爱咋咋地 谁也别想走 !
老人故意划车,车主取视频为证仍难究其责任!应该怎样避免?
在线QQ咨询,点这里
QQ咨询
微信服务号