
UNICITY万科天空之城
在售 住宅

均价: 58000元/平 变价通知
热门 精装修 近地铁 高绿化率 低容积率 品牌物业
建面户型: 75-102㎡ | 2-3房
最近开盘: 将于2019年10月26日加推 开盘通知
楼盘地址: 【徐汇区 上海】.. 青浦诸陆西路96... 查看地图
订阅动态
预约看房
对本项目感兴趣的朋友
请扫描下方二维码进入官方报名通道
预约咨询、参观

楼盘详情
楼盘名称:UNICITY万科天空之城
楼盘地址:青浦诸陆西路966号(近徐盈路)
建筑类型:塔楼
产权年限:70年
开发商:上海广欣投资发展有限公司,上海万泾置业有限公司
物业类型:住宅
楼栋总数:33栋
物业公司:上海万科物业管理有限公司
总户数:2803户
建筑面积:538821平方米
物业费:3.95元/㎡·月
绿化率:35%
楼盘动态+ 订阅动态
2019年
UNICITY万科天空之城将于2019年10月26日加推UNICITY万科天空之城将于2019年10月26日加推,项目已于2019年10月8日取证,并在2019年10月9日至10月16日期间正式认筹,均价为58000元/㎡,主要户型是75㎡-102㎡。详情请咨询售楼处。
06月25日2019年
UNICITY万科天空之城·星之屿6月26日-7月3日认筹UNICITY万科天空之城·星之屿2019年6月26日-7月3日认筹。认筹地点:青浦区徐泾镇诸陆西路966号天空之城售楼处;本次推出的房源建面为100-120㎡的3-4房,总价约536万元起,项目距17号线徐盈路地铁站仅约100米,物业公司为万科物业,更多信息请致电售楼处咨询。
06月24日2019年
UNICITY万科天空之城三期于2019年6月26日开始认筹UNICITY万科天空之城三期于2019年6月26日开始认筹,预计2019年7月14日开盘,三期项目命名为星之屿,目前还有少量155㎡的前期房源在售,均价为58000元/平米,更多详情可以致电售楼处咨询。
楼盘户型

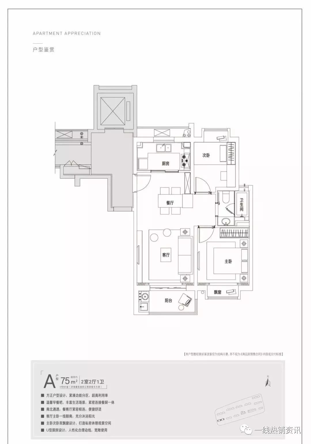
2室2厅1卫 75m? 待售 住宅
查看详情
三期A户型 首付:130.5万 参考月供:16160.63元/月
约435万/套

3室2厅2卫 102m? 待售 住宅
查看详情
三期F户型 首付:177.6万 参考月供:21993.32元/月
约592万/套

2室2厅1卫 75m? 待售 住宅
查看详情
三期B户型 首付:130.5万 参考月供:16160.63元/月
约435万/套
楼盘相册
项目效果图

项目效果图图

项目效果图

对本项目感兴趣的朋友
请扫描下方二维码进入官方报名通道
预约咨询、参观

更
多
精
彩
请长按下方二维码添加关注
欢迎扫码加入看房团,微信群与200000名购房者一起交流
