点击"小户型室内装修设计"关注我们


一些经典案例很多新关注的朋友不一定看过,所以隔一年半载有代表性的爆文我会重新发,老朋友估计都看到过。可以帮忙转发朋友圈哦~
↑↑↑点击这里,10秒获取免费报价!

▲ 这个案例应该是2016年的,我每年都推也不知道第几次了,因为实在太有代表性了。层高4米6,照片拍得好,不用怀疑眼睛不用怀疑面积,有户型图,图上有尺寸,进门走廊地上用花砖铺就

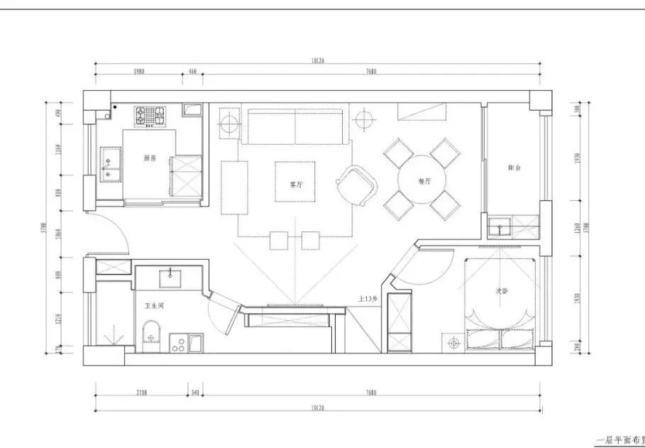
▲ 一层平面布置图

▲ 二层平面布置图

▲ 走廊门后风景,嵌入一组柜子,边上有挂衣钩、穿衣镜

▲ 镂空挑高的客厅,是不是有一种别墅的既视感

▲ 建筑面积82平,实用面积57平,层高4.6米,全部花费30多万

▲ 从客厅看进门处,可以看到楼下卫生间的隐形门

▲ 水晶大吊灯,超大装饰画,一切软装都优雅且霸气

▲ 客厅全景

▲ 电视墙后面是楼梯

▲ 餐厅圆桌

▲ 从餐厅看客厅

▲ 黑色橱柜门板和白色台面

▲ 楼下客卧

▲ 客卫淋浴区用浴帘

▲ 楼梯台阶立面也精心设计

▲ 楼上走廊

▲ 主卧的两个圆窗,点睛之笔

▲ 床头背景是用旧木板经过多道清漆制作而成

▲ 床尾和书房相连

▲ 书桌兼化妆台

▲ 满墙衣柜

▲ 走廊通往儿童房和卫生间

▲ 儿童房设计的卧榻和收纳

▲ 充满童趣的软装

▲ 主卫的浴桶
大C为您分享的精彩案例就到这,如果您想获得免费的装修报价与设计方案,就点击下方的小程序,你会得到你想要的!
点击「 阅读原文 」,可申请 免费报价 和 0元设计 哦 ~
点击这里阅读原文